Les infos Essentielles
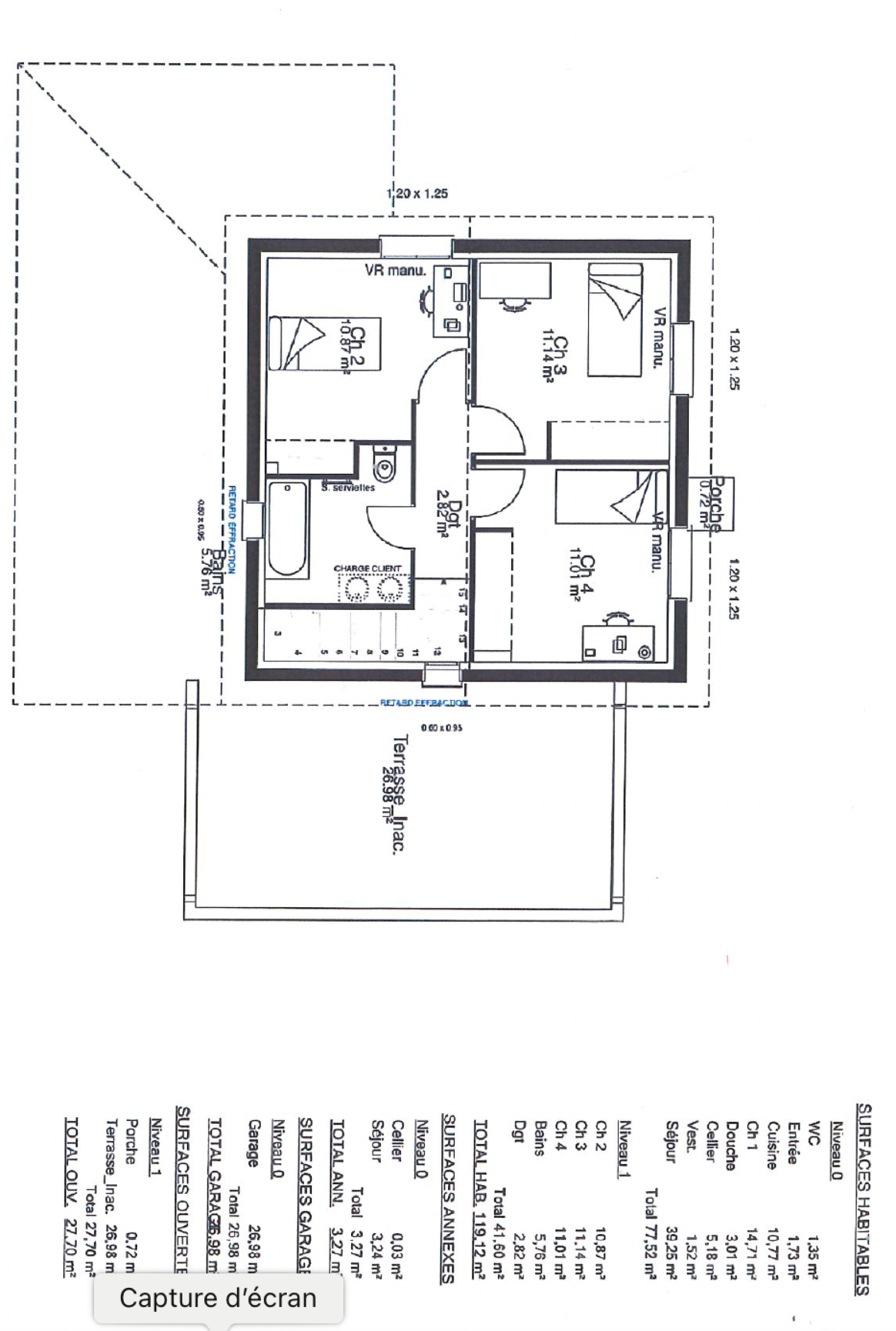
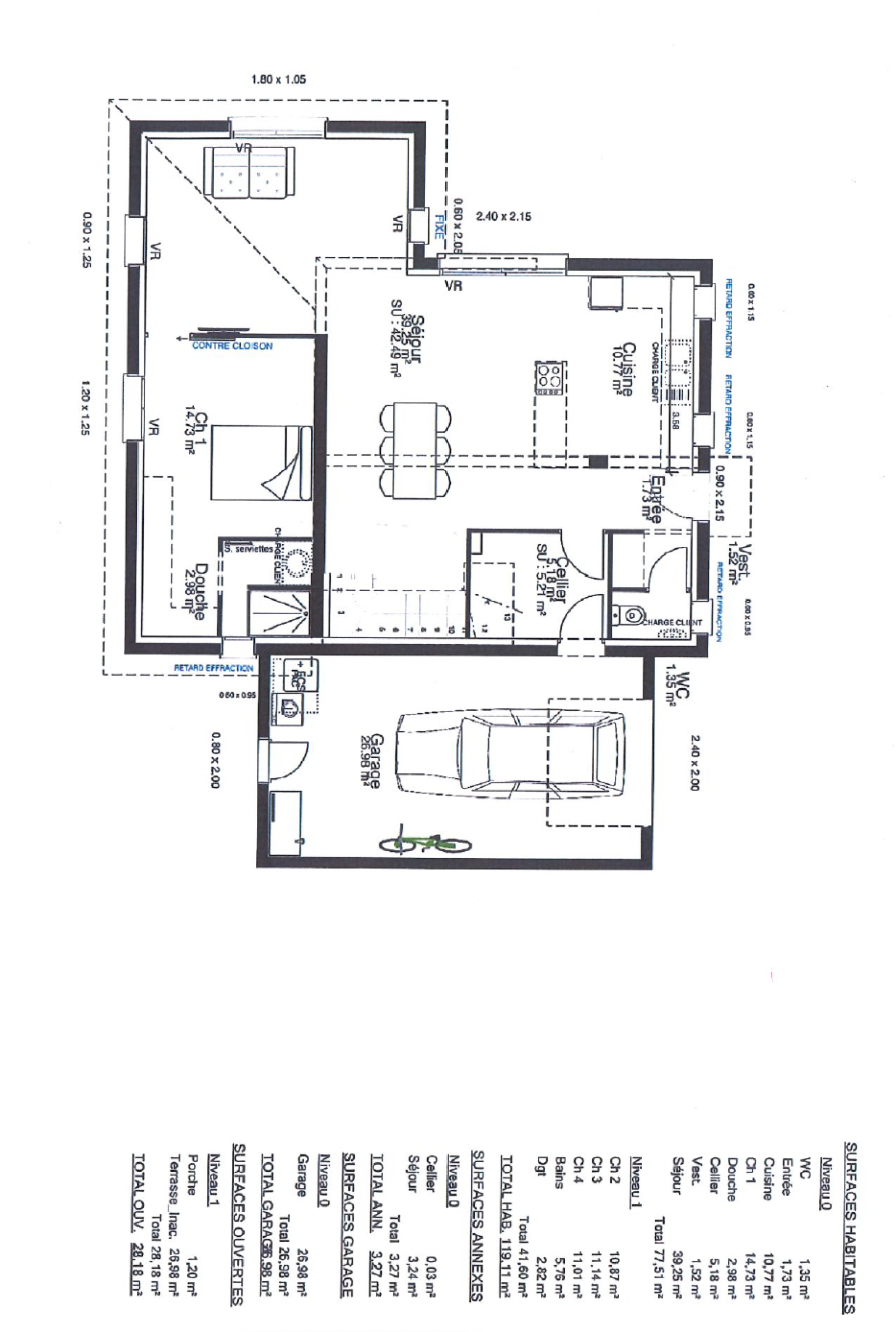
VENDU PAR L'AGENCE - FRANCHEVILLE LE HAUT, EXCLUSIIVITE WHITE IMMO, très jolie maison récente construite en 2016, de 120 m2 habitables avec une très bonne répartition des volumes et une décoration aux goûts du jour. Superbe pièce de vie de 50 m2 très lumineuse avec cuisine Us entièrement équipée. 4 chambres dont une suite parentale de plain-pied de 17 m2 avec salle d'eau et dressing. A l'étage les 3 autres chambres avec salle de bains. Nombreux rangements, cellier et garage de 27 m2. Chauffage au sol par pompe à chaleur sur le RDC, radiateurs à l'étage. Construction sur vide sanitaire, huisseries double vitrage et volets roulants. Portail et porte de garage motorisés. Terrain de 504 m2 avec terrasse plein Sud. DPE A (à la livraison - réactualisation en attente). Idéaliement située, dans un envrionnement résidentiel établi, à 2 pas des transporrts en commun (C20 / C20 E et Junior Direct) et de la forêt pour la balade.DPE : B. Notre avis: c'est facile d'avoir un coup de coeur pour cette maison !! Prix affiché frais d'agence inclus (honoraires charge vendeur). Votre contact Caroline Chostak 07 60 36 26 09. White immo l'Agence 04 72 44 42 00 Nom de code à donner pour tout renseignements : "l'étoile"
Les informations sur les risques auxquels ce bien est exposé sont disponibles sur le site Géorisques
Localisation Du bien
-
Commerces et santé
-
Loisirs
-
Ecoles
-
Transports
-
Pratique
Les infos Energetiques
